Referenzen

Mit der energiesparenden, nachhaltigen und wohngesunden Holz 100-Massivholzbaubauweise hat eine neue Zeit des Qualitätsholzbaus begonnen.

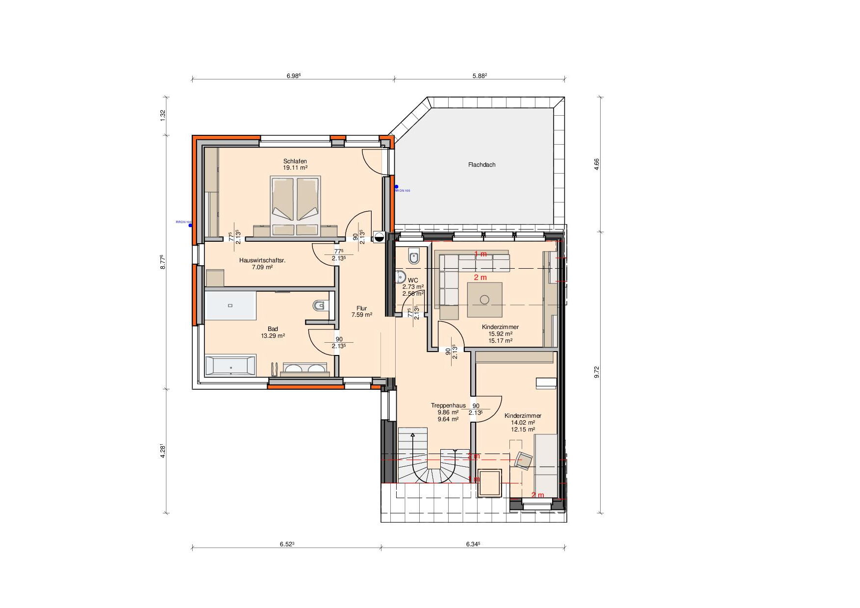
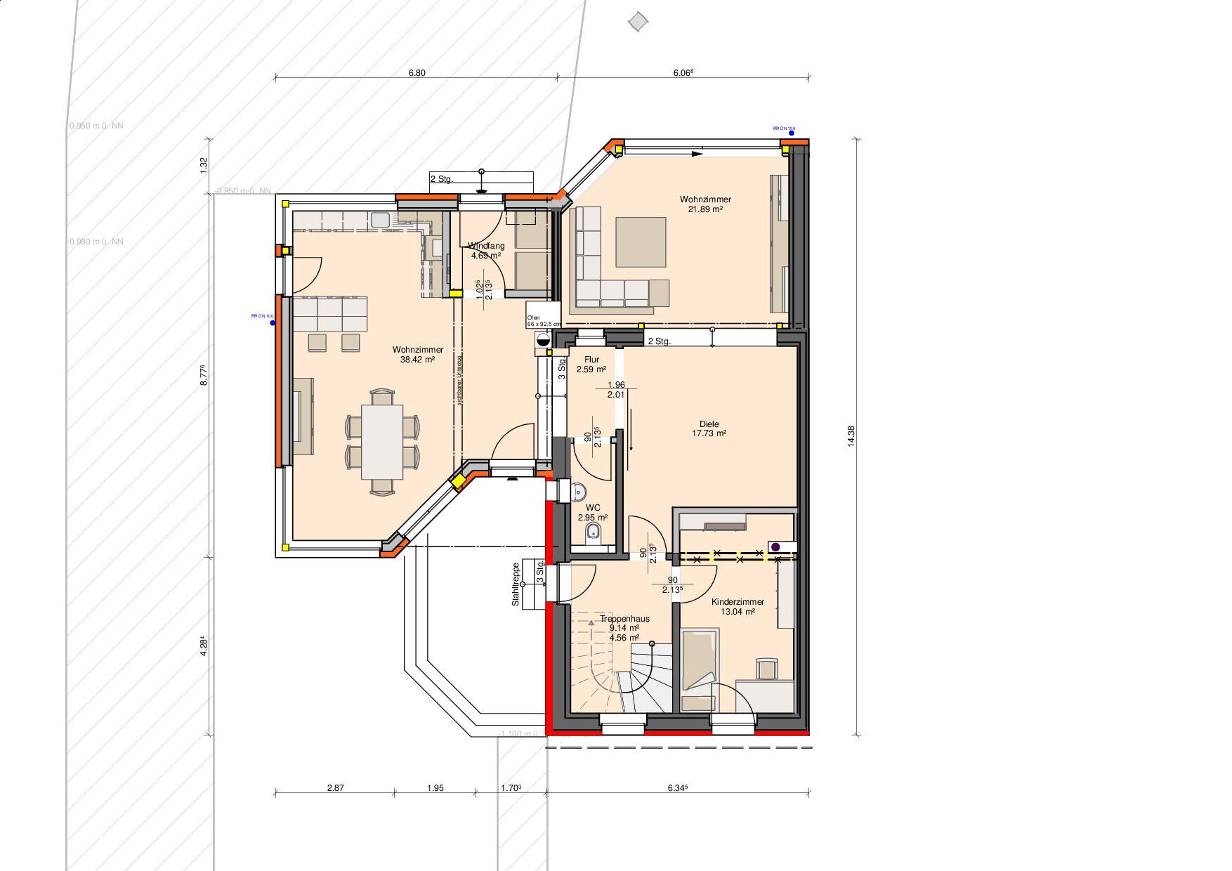
Anbau mit Komplettsanierung

Anbau eines Einfamilienhauses mit Komplettsanierung in Wallenhorst

Baumaßnahme

Projekt:
Anbau Einfamilienhaus mit Komplettsanierung
in wohngesunder Holzrahmenbauweise
Bauort:
Wallenhorst
Planer:
Jan Christof Voß
Ausführungsfirma:
Zimmerer-Profibau GmbH

Beschreibung

  • An- und Umbau Einfamilienhaus
  • KfW-Sanierung Effizienzhaus 70 EE
  • Wand- und Deckenkonstruktion in wohngesunder Holzrahmenbauweise
  • Flachdachkonstruktion mit Gefälledämmung
  • hochwertige farbige Kunststofffenster
  • hochwertige Kunststoff-Wohndachfenster
  • Außenverschattung mit Raffstoren-Elementen
  • Fassadenschalung als Lärchen-Leistenschalung
  • hochwertige Flachdachfolie (FPO-Bahn) mit Gefälledämmung
  • moderne Dachbegrünung
  • PV – Anlage mit Speicher (Stromerzeugung)
  • wohngesunde Infrarotheizung (Strahlungswärme)
  • moderner Kaminofen
  • hochwertige Warmwasser-Wärmepumpe
  • moderner Massivholz-Dielenboden
  • moderner großformatige Fliesenboden
  • glatte Wandoberflächen (Malervlies)
  • ökologische Wand- und Deckenfarben
 

Während der Arbeiten

 

Vor der Sanierung

zu unserer Website Fertighaussanierung
05742 - 70 47 74
Mo-Fr 8.00-17.00h
E-Mail schreiben
info@zimmerer-profibau.de
Instagram
@zimmerer_profibau
Facebook
Zimmerer Profibau