Architektur & Häuser aus Holz in NRW, Niedersachsen, Bremen, Hessen
Das Thema „Bauen“ fängt bei uns erst einmal beim Zuhören an, wir nehmen uns Zeit für Ihre Wünsche und Bedürfnisse. Der erste Schritt ist eine umfangreiche Bedarfsanalyse, denn standardisierte Haustypen oder vorgegebene Grundrisse gibt es bei uns nicht. Mit unseren Bauweisen ist jede Architekturform vom Landhaus bis zur Stadtvilla möglich. Jedes Haus ist bei uns ein Unikat, frei geplant und individuell auf Ihre Wünsche und das Baubudget abgestimmt.
Nur so kann ein, nach Ihren architektonischen Wünschen und auf Ihr Wohlbefinden, abgestimmtes Haus realisiert werden. Dabei stehen Ihre eigenen Bedürfnisse und Ansprüche im Vordergrund. In Verbindung mit unseren Zielen, Ihnen einen besonders gesunden Wohnraum auf höchstem ökologischem Niveau und frei von belasteten Baustoffen zu bauen, realisieren wir Ihr Traumhaus.
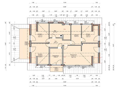
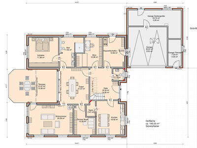
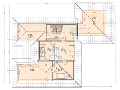
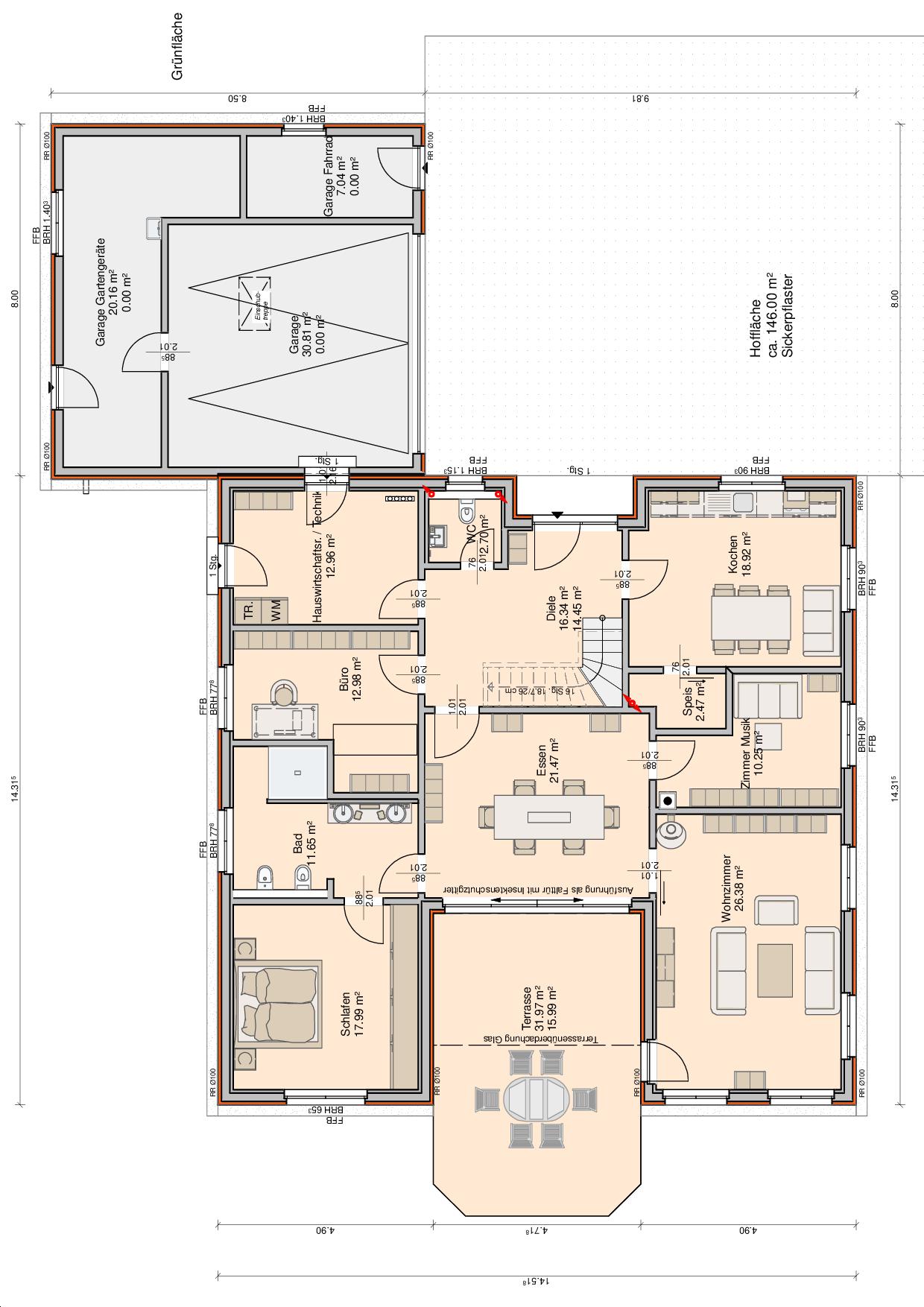
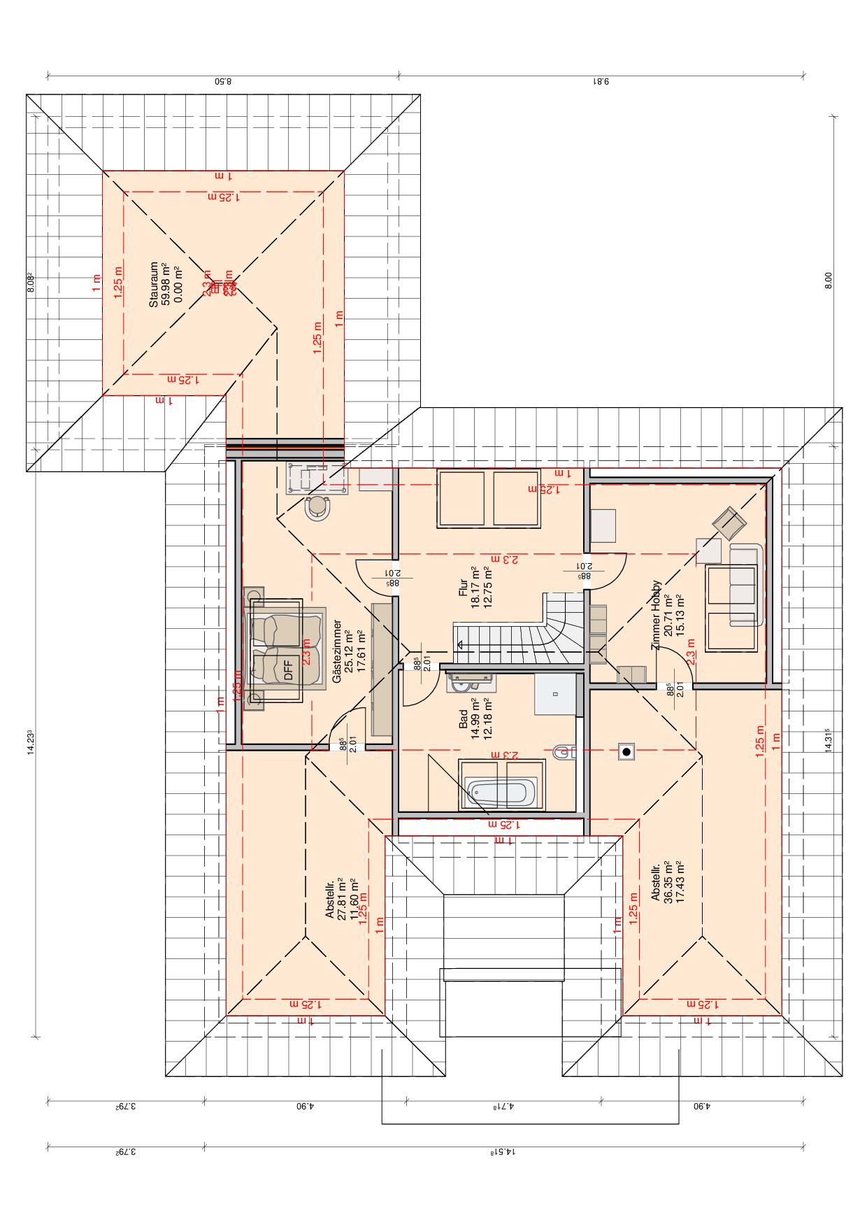
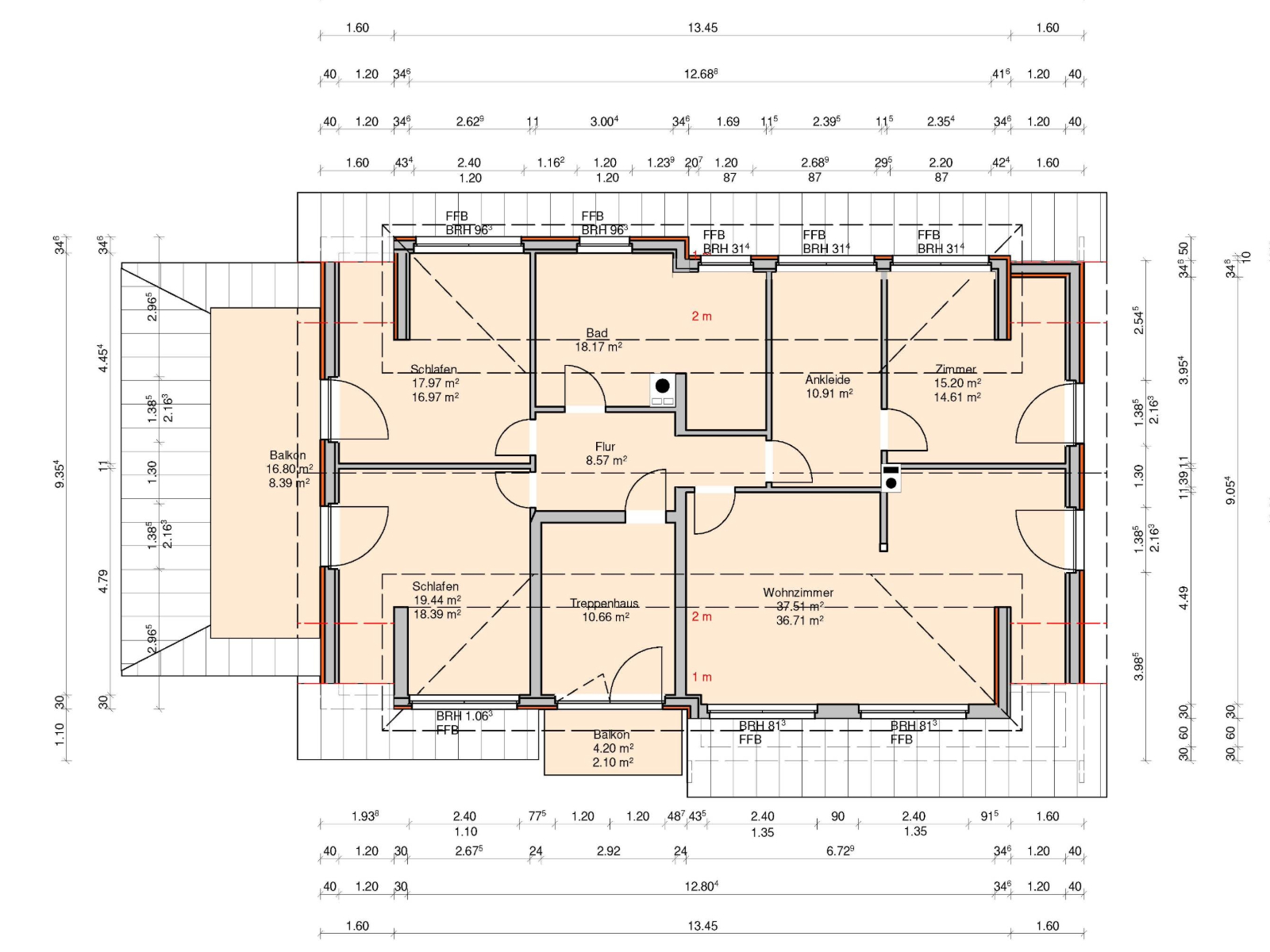
Entwürfe für Holzhausprojekte
Gerne können Sie sich an unseren Beispielen orientieren, die wir mit Ihren persönlichen Vorstellungen in der gemeinsamen Planung vereinbaren. Natürlich abgestimmt auf Ihren Raumbedarf, die Grundstückssituation und die Bauauflagen. So kommen wir zu einem zielführenden Gesamtkonzept auf dem höchsten technischen Niveau in Verbindung mit dem nachhaltigen Naturbaustoff Holz.
Als Generalunternehmen bieten wir Ihnen ein breites Spektrum an Leistungen aus einer Hand an, vom Rohbau bis zum schlüsselfertigen Wohnhaus.
Alle anfallenden Bauantragsunterlagen und behördlichen Genehmigungsverfahren erledigen wir für Sie, ebenso die vollständige Begleitung Ihres Bauvorhabens bis zum Abschluss aller vereinbarten Leistungen.
Unsere Fachberater geben Ihnen gern ausführliche Auskünfte und zeigen Ihnen gerne auf Wunsch weitere Referenzobjekte.
Wir sind Ihr kompetenter Partner für die Planung Ihres Neubaus.
 
           
                                 
       
       
       
       
       
       
       
       
       
       
       
       
       
       
       
       
       
       
			 
			 
			 
			 
			 
			 
			 
			 
			 
			 
			 
			 
			 
			 
			 
			 
			 
			 
			 
			 
       
       
       
       
       
       
      